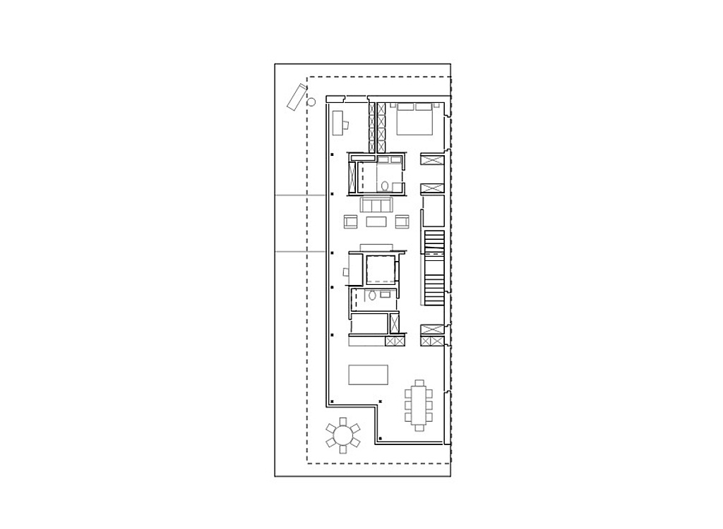
In den zwei Regelgeschossen sind vier Mietwohnungen geplant, die effizient um einen Infrastrukturkern organisiert werden und interessante Raumabfolgen bieten. Die Attikawohnung folgt einem offenen Grundrissprinzip, in dem einzelne Zonen von wenigen raumtrennenden Elementen definiert werden.
Nutzung
Wohnbau
Auftraggeber
Privat
Fläche
1`242 m2
Volumen
3`726 m3
Jahr
2016 - 2019
Leistungen
Entwurf, Vorprojekt, Baugesuch, Planung, Baumanagement, Beratung
Dokumente
Projektdatenblatt
Grundriss EG
Grundriss OG